Farmland homes granted despite affordability worry
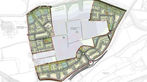
Peterborough City Council Planning DocumentsMore than 1,000 homes on farmland on the outskirts of a city have been approved, despite a concern over the number of affordable homes.
Permission to build the properties land in Paston, Peterborough - which would join 870 homes already granted - was unanimously approved by city councillors on Tuesday.
A request had been made for 30% of the homes to be affordable, but an independent consultant concluded that these figures were "unviable" .
It was agreed that one in 10 of the homes would be affordable.
Councillor Asim Mahmood supported the application, but had reservations over the "extremely low" percentage proposed.
"I think as an authority we should be doing more than just going for the 10%, but I do understand that viability sometimes doesn't allow us to do that," he said.
Josh Dickinson, assistant director at the applicant's agent Deloitte, told the planning committee the development would bring "significant benefits to Peterborough".
He said it included "important infrastructure which is essential to delivery of the whole allocation".
John Devine/BBCTracey Westley, from the area, told the BBC the new homes were a "really good idea".
"But I do think the infrastructure needs to be in place first," the 54-year-old said.
"Quite a lot of the time, they build a housing estate and then add the rest afterwards. I'd like to see it done the right way round."
John Devine/BBCSpecific designs for the 2,000 planned homes will be submitted at a later date.
A new A16 roundabout and improvements to Newborough Road have already been agreed, as well as £26.5m towards local infrastructure.
Emilia Jeeves, 35, said she welcomed the homes. "If they're treated well, I can't see why it wouldn't succeed and the families that go in them, succeed as well," she said.
"If they're going to put people out of bad situations and into a better one, why not?"
John Devine/BBCBut Tim Clark, 53, suggested the homes should be closer to the city centre.
"I think it's a bit out in the sticks," he said. "It should be a bit nearer to Peterborough itself. I'm not too bothered about it being greenbelt land, but make it local. Make it closer to the city."
John Devine/BBCJurga Ziliene, 49, also had reservations, suggesting the roads were too narrow to deal with an influx of traffic.
"We already have a lot of new homes here," she said. "Why does everything have to be in Peterborough?"
Follow Peterborough news on BBC Sounds, Facebook, Instagram and X.
