Pub owners determined not to close their doors
Julie PenneyA pub owner has said she will do all she can to ensure it does not "become a casualty of the cost of living crisis".
The Swan Inn in Monks Eleigh near Sudbury, Suffolk is owned by Julie Penney and has unfortunately seen a significant decline in restaurant customers.
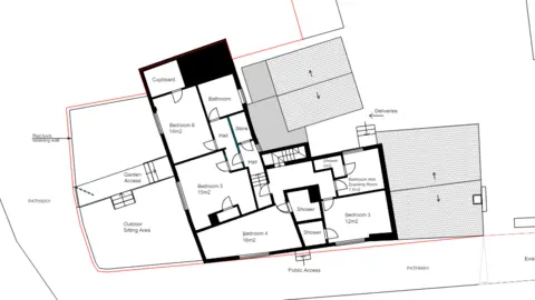
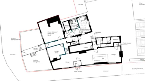
In an attempt to survive, Mrs Penney and her husband Stephen Penney submitted plans to turn the restaurant into five bed and breakfast (B&B) rooms.
Mid Suffolk District Council approved the plans on Tuesday which Mrs Penney said was a "major relief".
Planning By Design Lts"[The idea] sprung up from the pandemic really because we had a lot of time on our hands," Mrs Penney explained.
"We had two rooms that weren't being used and so we decided to spend our time renovating them."
The two rooms currently operating have "proved quite popular" according to Mrs Penney.
The new rooms would be far more "financially viable" than the restaurant she said.
"In the restaurant you're buying the food and if no one eats it it's in the bin or being frozen," the 56-year-old said.
"There's only so much fish and chips myself and my husband can eat in one week.
"It's quite soul destroying when you've got this lovely big restaurant and it's gathering dust."
The couple are now able to get going with the work, making use of local trade to create the new rooms.
Julie PenneyMr and Mrs Penney have owned the pub since 2018 after both of them were made redundant from their previous roles at an engineering company.
Mrs Penney said "initially we had the best of times" but like most pubs when the pandemic hit they struggled.
"Things just changed irreversibly from the pandemic onwards and then the cost of living crisis chucked in for good measure," she explained.
"We were on our knees back in 2020/21, it was a real struggle.
"We did make it through and we've come out the other side thankfully but things unfortunately didn't get any easier."
At one point the couple brought in a tenant to run the pub and restaurant after thinking it may have been them that was the problem.
However the tenant similarly struggled and handed back the keys.
"After the initial support of people coming in and trying us, the trade for the food dwindled again," Mrs Penney continued.
"We're very fortunate that we've got some lovely regular drinkers and they're our bread and butter.
"But unfortunately you cannot survive on bread and butter for too long."
Julie PenneyThe news of their B&B plans being granted came as a big relief to the couple.
"We're more positive now and the letting side of the business will now help immensely," Mrs Penney said.
"So many places are shutting and we don't want to be a casualty of the cost of living crisis.
"We'll try our hardest to ensure that and diversify to keep going."
Planning By Design LtsNational Executive of the Campaign for Real Ale (Camra), Nik Antona, said many pubs at the moment were "having to do anything to keep afloat as the industry desperately treads water".
An "unrelenting storm of sky-high costs of goods" as well as "escalating energy bills" were hitting pubs hard, he said.
“Pubs are part of the fabric of community life across the UK, providing a safe place to meet and socialise, offering a community hub for activities and events," Mr Antona explained.
"We risk losing these beloved community hubs for good unless meaningful support is bestowed upon the sector."
Got a story? Email eastofenglandnews@bbc.co.uk or WhatsApp us on 0800 169 1830
