Plans to turn vacant pub into 11-bed HMO approved
GoogleA pub which closed four years ago is to be turned into an 11-bedroom house of multiple occupation (HMO).
The Crown in Leiston, Suffolk, has been vacant since it closed shortly before the first Covid-19 lockdown.
East Suffolk Council approved the plans on Wednesday, with conditions stating development must begin within three years.
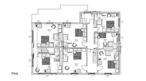
Developers say the HMO will provide 11 rooms with ensuite accommodation, as well as two free standing wc/shower rooms, two shared kitchens and a living/dining area.
Brooks Architects LtdThe application was submitted in September and according to planning documents, the rear of the site on King George's Avenue will be upgraded for resident use.
The larger of the two existing outbuildings will also be upgraded to provide a refuse store and a parking area for 11 bicycles.
Developers plan to demolish one smaller outbuilding, while the car park will remain unchanged.
However, the car park's dual entrance will be reduced to one.
No proposals have been put forward to extend the building but some "modest changes" will be made to various elements.
In one public comment made online within the planning application, a local resident said they felt the HMO "would be totally out of character in this area".
Brooks Architects LtdThe Crown was subject to a similar planning application in 2021 but it was subsequently withdrawn.
According to the 2021 planning application, the pub was put on the market in February 2020 and ceased trading "shortly before the first national lockdown".
Follow East of England news on Facebook, Instagram and X. Got a story? Email [email protected] or WhatsApp us on 0800 169 1830





