'Protected trees' concern shelves housing plan
LDRSPlans to build about 100 new homes have been refused over the potential harm to the environment.
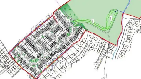
Developer Castles and Coasts wanted to build on land to the east of Lansdowne Close, Carlisle, with some designated as "affordable" homes, of which the city has a shortage.
However, concerns had been raised over issues including drainage, parking, and possible damage to protected trees.
At a meeting of Cumberland Council's planning committee it was unanimously agreed that the application be refused.
The original application had been amended since it was first put forward to the former Carlisle City Council two years ago, the meeting was told.
Out of the 101 units, 86 were now designated as affordable homes, with the developer saying this would address an “undeniable and unavoidable” need.
But there had been more than 1,000 objections to the development.
LDRSThe Local Democracy Reporting Service said that Stanwix Urban Liberal Democrat councillor Brian Wernham pointed out that the applicant had "not fixed mistakes in their flood risk and drainage strategy", which could lead to flooding and other safety issues.
Labour councillor Bob Kelly, who represents Millom, wondered if the application could be deferred so that a revised plan could be considered but was warned about the “cumulative effect” the numerous amendments had had on the plan.
Conservative councillor John Mallinson, who represents Houghton and Irthington, said they had been given conflicting advice from experts on the tree issue and that was the primary reason for refusal.
He added: “I am really struggling with this.
“We have two views that the trees are veteran trees.
"One of the people at least is a trusted advisor to the council and I would go with that view.”
A spokesman for the developer said trees would be protected during construction and it would increase local tree cover.
But Mr Mallinson proposed that planning permission be refused and the committee unanimously agreed.
Follow BBC Cumbria on X (formerly Twitter), Facebook and Instagram. Send your story ideas to northeastandcumbria@bbc.co.uk.
