Plans for 5,600 homes 'frozen' by sewage works
Nick Spurling/BBCA project to build 5,600 homes has been "frozen" as developers wait for a government decision on the relocation of sewage works.
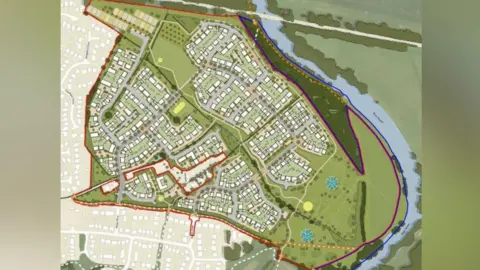
The developers, LandsecU+I and Town, hoped to submit a planning application for the Hartree development in Cambridge in March.
The development has been dependent on permission being granted for a replacement sewage works, so the homes could be built on an existing waterworks facility.
A decision on the sewage project was due to be issued on 12 January, but was delayed for a second time by the Secretary of State for Environment, Steve Reed, until 14 April.
LandsecU+I/TOWNAnglian Water applied for permission to build the new Cambridge Waste Water Treatment Plant on land north of the A14 at Honey Hill, between Horningsea and Fen Ditton.
Mike Bodkin, head planner at Town, said the Hartree scheme was "now frozen," but if the sewage works relocation was approved, an outline planning application for Hartree would be submitted "shortly after".
Some 90% of the homes would be flats, and the development could also include two primary schools, a library, a health hub, sports hall, and two flexible community or culture facilities.
Developers previously claimed there was not a development like Hartree "anywhere in the world yet" and it would "set a new standard," the Local Democracy Reporting Service said.
On Wednesday, Cambridge City Council and South Cambridgeshire District Council were updated on the plans at joint committee meeting.
Labour councillor at Cambridge City, Katie Thornburrow, raised concerns at "misinformation" spread that no cars would be allowed on the development.
Developers confirmed there would be car access, but it aimed to create "excellent walking and cycling facilities" to give people the option not to have a car.
They said four mobility hubs were planned around the edge of the site for parking, car club spaces, access to e-bike, bus and other transport.
They added disabled car parking spaces would be created near accessible homes.
Mr Bodkin explained they planned to restrict possible parking places using the landscaping and a system of fines would be put in place for inappropriate parking.
"We are not dictating who can come and live here, but what we are saying is that, if they want to come live here, they are then buying into the vision," he said.
"If they want to live with a car then there will be an additional cost and they will be paying to use a space."
Follow Cambridgeshire news on BBC Sounds, Facebook, Instagram and X.
