शनिवारवाड्याची जागा बाजीराव पेशव्यांनी कशी निवडली? या वास्तूचा इतिहास काय आहे?

फोटो स्रोत, Getty Images
- Author, ओंकार करंबेळकर
- Role, बीबीसी मराठी प्रतिनिधी
- वाचन वेळ: 9 मिनिटे
एखाद्या राज्याचं मुख्य केंद्र, राजाचं निवासस्थान किंवा त्या राज्य-संस्थानाचं कामकाज चालणाऱ्या केंद्रालाही इतिहासात महत्त्वाचं स्थान मिळत असतं. दिल्ली-आग्र्याचे लाल किल्ले, हैदराबाद, विजापूर, औरंगाबाद, अहमदनगर. तिथले महाल आणि किल्ले यांनाही सत्ताकेंद्रामुळे इतिहासात तेवढंच स्थान मिळत असतं. हेच भाग्य शनिवारवाड्याच्या वाट्याला आलं.
शनिवारवाडा हे नाव महाराष्ट्रातच नाही तर मराठी सत्तेचा अटकेपासून तंजावरपर्यंत जिथपर्यंत संबंध आला तिथपर्यंत हे गेलं. आणि हा वाडा तितकाच प्रसिद्ध झाला.
सुमारे 8 दशकं या वास्तूचा दबदबा देशभरात टिकून राहिला. एकेकाळी इथं मराठी सत्तेचे महत्त्वाचे निर्णय घेतले गेले असल्यामुळे आजही त्याचं ऐतिहासिक महत्त्व कायम राहातं.
पेशवाईचा उदय आणि अस्त, पेशवाईतली भरभराट आणि बजबजपुरीही पाहिलं. मोठ्या लढायांचा विजय पाहिला तसा पानिपतचा पराभव पाहिला. राजकारणाचे डाव पाहिले, कारस्थानं पाहिली. न्यायनिवाडा पाहिला, परदेशी पाहुणेही इथं येऊन गेले. इतकंच नाही तर एका पेशव्यांची हत्या पाहिली, एका पेशव्यांचा कारंजावर पडून झालेला अपमृत्यू पाहिला.
पुणे शहराला आकार कसा आला?
पेशव्यांनी राज्यकारभारात जम बसवल्यावर पुणे शहराला राजधानीसारखं महत्त्व प्राप्त झालं. कोकणासह वेगवेगळ्या प्रदेशांतून लोक या शहरात राहायला येऊ लागले.
गावपण जाऊन त्याला शहरासारखी कळा प्राप्त होऊ लागली, नवे व्यावसायिक इथं स्थायिक होऊ लागले, व्यापार करू लागले.
1780 च्या आसपास पुण्याची लोकसंख्या अंदाजे 1 लाख 57 हजार इतकी होती पुढच्या 20 वर्षांत ती 6 लाखांवर गेली असावी असा अंदाज काही अभ्यासकांनी मांडला होता. एकूणच या काळात पुणं गजबजलेलं होतं हे समजतं.
रियासतकार सरदेसाईंनी रियासतीच्या दुसऱ्या खंडात पेशवाईत पुण्याचं महत्त्व कसं वाढत गेलं आहे याबद्दल लिहिलं आहे.
ते लिहितात, “निरोगी हवा, पाचक पाणी, रुचकर अन्न, सुगंधी फुले, स्वादिष्ट फळे यांच्या समवायांत राजकीय ऐश्वर्य, कौटुंबिक स्वास्थ व राष्ट्रीय उमेद या पुण्यनगरांत एकवटल्या होत्या.”

फोटो स्रोत, Getty Images
रियासतकारांनी केलेल्या वर्णनावरुन पुण्याचं महत्त्व लोकसंख्या, व्यापार, राजकारण आदी गोष्टींसाठी कसं वाढत गेलं याचा अंदाज येतो. पुण्यात कसबा पेठ ही सर्वांत जुनी पेठ होती. त्याबरोबरच शनिवार पेठ, शुक्रवार पेठ, बुधवार पेठ, गुरुवार पेठ, भवानी पेठ, सदाशिव पेठ, गंज, गणेश, मुझफरगंज, नागेश-नारायण या पेठाही त्यावेळेस गजबजल्या होत्या.
वेगवेगळ्या सरदारांचे वाडे, सामान्य नागरिकांची घरं, व्यापार-उदीम या पेठांमधून चालत असे, त्याचप्रमाणे विविध देवळंही या पेठांमध्ये होती.
ज्या भवानी पेठेत घाशीराम कोतवालाचं घर होतं ती पेठ 1767 साली महादेव विश्वनाथ लिमये यांनी माधवराव पेशव्यांच्या आदेशाने वसवली.
पुण्यातले वाडे
पुण्यात जशा वेगवेगळ्या पेठा होत्या तसे वेगवेगळे वाडेही होते. यात मुख्य सुरुवात होते ते छ. शिवाजी महाराजांच्या लाल महालापासून पेशव्यांच्या शनिवारवाड्यासह अनेक सरदार, सावकारांचे पुण्यात वाडे होते यात शिंदे, होळकर, निंबाळकर, घोरपडे, गायकवाड, पटवर्धन, प्रतिनिधी, पंतसचिव, रास्ते, बिनिवाले यांच्यासह अनेक मराठा सरदार, अधिकारी यांचे वाडे होते.
पेशव्यांचे शनवारवाडा (शनिवारवाडा), विश्रामबागवाडा, बुधवारवाडा, शुक्रवारवाडा असे वाडे होते.
पेशवे
बाळाजी विश्वनाथ भट यांना छ. संभाजी महाराजांचे पुत्र म्हणजे सातारचे शाहू यांनी पेशवाईची वस्त्रं दिली.
त्यांना पहिले बाजीराव आणि चिमाजी अप्पा हे दोन पुत्र होते.
बाळाजी विश्वनाथ यांच्यानंतर पहिले बाजीराव पेशवे झाले.
पहिल्या बाजीरावांना नानासाहेब, समशेरबहादूर आणि रघुनाथराव असे तीन पुत्र होते. त्यांच्या मृत्यूनंतर नानासाहेब पेशवे झाले.

फोटो स्रोत, Getty Images
नानासाहेबांना विश्वासराव, माधवराव आणि नारायणराव असे तीन पुत्र होते. त्यातील विश्वासराव पानिपतच्या युद्धात कामी आले. त्यामुळे नानासाहेबांनंतर माधवराव पेशवेपदी आले.
माधवरावांचा मृत्यू झाल्यानंतर नारायणराव पेशवे झाले. मात्र, नारायणरावांची शनिवारवाड्यातच हत्या झाली.

फोटो स्रोत, Getty Images
त्यामुळे काही काळ पहिल्या बाजीरावांचे पुत्र रघुनाथराव यांनी पेशवेपद काबिज केलं. पण थोड्याच अवधीत नारायणरावांचे पुत्र सवाई माधवराव पेशवे झाले.
रघुनाथरावांच्या एका पुत्राचे नाव बाजीराव रघुनाथ म्हणजेच दुसरे बाजीराव.
सवाई माधवरावांचा शनिवारवाड्यातच कारंजावर पडून मृत्यू झाल्यावर दुसरा बाजीराव पेशवेपदी आले.
यातले बाळाजी विश्वनाथ वगळता सर्वांचा या वाड्याशी संबंध आला.
शनिवारवाड्याची जागा कशी निवडली?
शनिवारवाड्याची ही जागा कशी निवडली याबद्दल एक आख्य़ाईकावजा गोष्ट सांगितली जाते. वाड्यासाठी जागा शोधत असताना एकेठिकाणी एका कुत्र्याचा पाठलाग ससा करताना दिसला.
इतका भित्रा प्राणी कुत्र्याला हुसकावून लावतोय हे पाहून ही जागा शौर्याची असली पाहिजे असा कयास बांधून बाजीरावांनी या जागेला पसंत केले. याच जागेवर आज दिसत असलेला शनिवारवाडा बांधण्यात आला.
शनिवारवाडा नाव कसं पडलं?
तसं पाहाता एखाद्या वाड्यात कोण राहातंय किंवा तो कोणी बांधला यावरुन त्या वाड्यांची नावं पडलेली दिसून येतात. काहीवेळेस भातुकलीचा वाडा सारख्या वास्तूही इतिहासात दिसून येतात. पण या वाड्याला मात्र शनिवारवाडा असं ठेवलं गेलं. पेशव्यांच्या बुधवार आणि शुक्रवार पेठेतल्या वाड्यांनाही बुधवारवाडा, शुक्रवारवाडा अशी नावं होती.

फोटो स्रोत, Getty Images
शनिवार वाड्याची पायाभरणी शके 1651 साली माघ महिन्यात शुक्ल पक्षात तृतीयेला झाली. या दिवशी 10 जानेवारी 1730 ही तारीख होती आणि शनिवार होता. तसेच वाड्याची वास्तूशांती 22 जानेवारी 1732 रोजी झाली. तेव्हाही शनिवार होता, पुढे या वाड्यालाही तेच नाव पडले.
कसा होता शनिवारवाडा?
पुण्याचे पेशवे या पुस्तकाचे लेखक अ. रा. कुलकर्णी यांनी पेशवेकालीन पुणे या प्रकरणात या वाड्याची माहिती दिली आहे. ते लिहितात, या वाड्याची मुख्य इमारत सहा मजली होती. असे म्हणतात की या इमारतीच्या गच्चीवरुन आळंदीच्या देवळाचा कळस आणि पर्वतीचे विहंगम दर्शन होत असे.
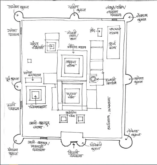
शनिवारवाड्यास 5 दरवाजे आहेत. त्याची तटबंदी 185 यार्ड लांब आणि 33 फूट उंच आहे.
दिल्ली दरवाजा, गणेश दरवाजा, मस्तानी दरवाजा, कवठी दरवाजा आणि जांभूळ दरवाजा हे या वाड्याचे दरवाजे होते. त्यातला दिल्ली हा मुख्य दरवाजा आणि गणेश दरवाजा हा पेशव्यांच्या गणपती महालास जाणारा महत्त्वाचा दरवाजा होता.

फोटो स्रोत, SOURABH MARATHE/PUNE
या वाड्यात दहा चौक होते त्यातले 4 चौक मोठे होते. फडाचा चौक, बकुळीचा चौक. ताक चौक, नवा चौक, यमुनाबाईचा चौक, माणिक चौक, हजारी चौक, लाल चौक, पंगतीचा चौक, गोदुबाईचा चौक असे चौक होते.
वाड्यामध्ये आरसे महाल, नृत्य महाल आणि वेगवेगळे दिवाणखानेही होते.
याबरोबरच वाड्यामध्ये देवघरं होती, जिन्नसखाना, पुस्तकशाळा, दफ्तरखाना, पीलखाना, गोशाळा, उष्टरखाना, कबूतरखाना, वैद्यखाना अशा वास्तू होत्या.

फोटो स्रोत, Getty Images
याबद्दल अधिक माहिती देताना इतिहास अभ्यासक आणि वास्तुविशारद सौरभ मराठे यांनी बीबीसी मराठीला अधिक माहिती दिली.
ते म्हणाले, "छ. शिवाजी महाराजांच्या काळापासून पुण्याची वाढ खर्या अर्थाने होत गेली असेच म्हणावे लागेल. सासवडला पाण्याचे दुर्भिक्ष्य जाणवू लागल्याने आणि त्या तुलनेत पुण्यात पाण्याची सुबत्ता असल्याने पेशव्यांनी पुणे राहण्यास निवडले. त्या निमित्ताने त्याने एक वाडा बांधण्याच्या सूचनाही दिल्या.
"शिवाजी महाराजांनी बांधलेल्या लाल महालाच्या दक्षिणेस आणि तशा मोकळ्या जागेत बाजीराव पेशव्यांनी आपला वाडा बांधण्याचे ठरवले," मराठे सांगतात.

फोटो स्रोत, SOURABH MARATHE/PUNE
ते सांगतात, "आज आपण बघत असलेला वाडा ही एक गढी आहे. तटबंदी असलेल्या वाड्याचे क्षेत्र साधारण 6 एक एकर आहे. ह्या वाड्याचे बांधकाम एकदम एका टप्प्यातच झाले असे नाही तर प्रत्येक पेशव्यांबरोबर वाड्याचेही बांधकाम घडत होते असे दिसते. लाकूड, चुना, दगड, विटा यांचा उपयोग करून वाडा आणि परिसर बांधला गेला असेच म्हणता येईल.
"सुरुवातीच्या काळात पेशव्यांचा वाडा ज्यात निजण्याच्या खोल्या कारंजे, दिवाणखाना असे बांधले गेले. वाड्याभोवती जशा इमारती उभ्या राहत होत्या तसे त्यांना कुसू किंवा कोट घालणे आवश्यक होते. त्याचे ही काम सुरू झाले. पण गावाभोवती किंवा वाड्याभोवती कुसू घालावे ही गोष्ट शाहू महाराजांना पसंत नसल्याने पुढे ते काम थांबले. पुढे काही कालांतराने तट बांधण्यात आला."

फोटो स्रोत, SOURABH MARATHE/PUNE
"बाजीराव पेशवे, नानासाहेब, भाऊ, राघोबा दादा, जनार्दनपंत, विश्वासराव, माधवराव, नारायणराव, सवाई माधवराव पेशवे ह्यांचे जवळपास संपूर्ण आयुष्य वाड्यात गेले. त्यामुळे त्यांना आणि कुटुंबाला लागेल असे स्नान, भोजन गृह, देवघरे, रत्नाशाला, वस्त्रघर, शास्त्रघर, वस्तूभंडार, गोशाळा, अश्वशाला, गाठीभेटी दरबार, अशा अनेक इमारती इथे बांधलेल्या दिसतात. पाण्याची अडचण दूर करण्यासाठी विहिरी खणल्या होत्या. तसेच कात्रजचे पाणी, नदीचे पाणी आणून वाड्याच्या पाण्याचा प्रश्न मिटवलेला दिसतो."
"वाड्यात अनेक इतरही इमारती होत्या जसे की आरसे महाल. वाड्याची रचना ही इतर वाड्यांप्रमाणेच होती असे दिसून येते. खण आणि घई या मोजमापचा उपयोग करून, चौक असलेला वाडा बांधलेला दिसून येतो. जोत्याचा भाग चिरेबंदी आणि वरील भाग विटा, लाकूड, चुना ह्याचा उपयोग करून बांधलेला होता. दुर्दैवाने लागलेल्या आगीत हा वाडा भस्मसात झाला आणि जोत्याचा भाग शिल्लक राहिला जो आज आपल्याला बघायला मिळतो. "
शनिवारवाड्यात घडलेल्या घटना
शनिवारवाड्यात अनेक मोठ्या घटना घडल्या किंवा अनेक घटनांचं राजकारण इथं बसून ठरवलं गेलं. राजकारणातली तेव्हाची महत्त्वाची पात्रं इथंच बसून कारभार करत होती.
शनिवारवाड्यात घडलेली एक मोठी घटना म्हणजे नारायणराव पेशव्यांचा खून. 1773 साली गणेशोत्सवाच्या काळात ही घटना घडली.
अनंतचतुर्दशीच्या आदल्या दिवशी नारायणराव पेशवे पर्वतीवरुन शनिवारवाड्यात आले त्याच दिवशी वाड्यात सातआठशे गारदी घुसले. नारायणरावांनी आपल्या आयुष्यासाठी राघोबादादांकडे मदत मागितली पण काहीच उपयोग झाला नाही. नारायणरावांची हत्या झाली. या हत्याकांडात सात ब्राह्मण, एक हुजऱ्या, दोन स्त्रिया आणि एक गायीला मारण्यात आलं.
सवाई माधवरावांचा मृत्यू
सवाई माधवरावांच्या काळात नाना फडणवीसांना कडक शिस्तीत कारभार सुरू ठेवला होता. बहुतांश निर्णय नाना फडणवीसांच्या मार्गदर्शनाखालीच होत होते.
सवाई माधवरावांनी दुसऱ्या बाजीरावांशी सुरू केलेला पत्रव्यवहार नानांना आवडला नव्हता. दुसऱ्या बाजीरावाला कैदेत ठेवणं योग्य नाही असंही त्यांना वाटत होतं.
एकीकडे शारीरिक व्याधींमुळे कोंडी होत होतीच तेव्हा एकेदिवशी तापातच त्यांनी खोलीतून उडी मारली ती नेमकी कारंज्यावर पडली आणि त्यामुळे निर्माण झालेल्या आजारात त्यांचं निधन झालं.

फोटो स्रोत, Getty Images
या घटनेबद्दल राजवाडे लिहितात, “श्रीमंतास ज्वरांशात वायू झाला होता. प्रातःकाळी गणपतीचे दिवाणखान्यावर रंगमहाल आहे तेथे निद्रेचे स्थान आहे तेथे गेले. पलंगावर बसले होते. वायुचे भिरडीत काय मनास वाटले न कळे, पलंगावरुन उठून दक्षिणेकडील खिडकीत उभे राहिले. खिजमतगार याने शालेस हात लाविला की उभे राहणे ठीक नाही. तो एकाएकीच तेथून उडी टाकली. खाली दीड भाला की उभे राहाणे ठीक नाही, तेथे काठांवर पडून आंत पडले.”
घाशीराम कोतवाल
ज्या घटनेमुळे घाशीरामाचा मृत्यू झाला त्याबद्दल अनेक वर्षे चर्चा सुरू राहिली. ती घटना घाशीरामाच्या वाड्यात झाली असली तरी त्याच्याबद्दलचा निर्णय सवाई माधवरावांनी याच वाड्यात बसून घेतला. शिक्षा होईपर्यंत त्याला शनिवारवाड्याच्याच तोफखान्यात त्याला ठेवण्यात आलं.
नाना फडणवीसांचे चरित्र लिहिणारे वासुदेव वामनशास्त्री खरे यांनी याबद्दल लिहिले आहे. त्यांनी लिहिलेल्या वर्णनातील काही भाग आपण पाहू.

फोटो स्रोत, Getty Images
ते लिहितात, “पुण्याहून द्रविड ब्राह्मण आपल्या देशास जाण्याकरिता निघोन असामी पसतीस श्रावण वद्य 14 रविवारी प्रहर दिवसास सायंकाळी घाशीराम कोतवाल यांचे बागात जाऊन उतरले. तेथे ब्राह्मणांनी कणसे मळ्यातील मक्याची दहा कणसे तोडली. त्यावरुन माण्याचा व त्यांचा कजिया जाहला. माळ्याने शिवीगाळ केली. त्यावरुन ब्राह्मणांनी त्यास मारिले. त्याजवरुन माळी फिर्याद घेऊन कोतवाल यांजकडे आला आणि सांगितले की, फितवेकरी चोर कोमटी वगैरे आहेत, मळ्यात दंगा करतात, मला मारिले, त्यांचे पारिपत्य केले पाहिजे.”
घाशीरामाकडे तक्रार आल्यानंतर त्याने 25 लोक पाठवून ब्राह्मणांना मारहाण करुन भवानी पेठेतल्या आपल्या वाड्याच्या तळघरात कोंडलं.
रविवारी रात्री ब्राह्मणांना कोंडल्यावर त्यानंतर सोमवारचा अख्खा दिवस गेला. ही गोष्ट मंगळवारी सकाळी मानाजी फाकडे यांना समजली.
त्यांनी जाऊन जबरदस्तीने कुलुपं उघडायला लावली तेव्हा 18 ब्राह्मण घुसमटून मेल्याचं दिसलं. 9 लोक जिवंत होते. त्यातल्या तिघांचा जीव त्याच दिवशी संध्याकाळी गेला आणि 6 लोक मात्र वाचले.
हे सगळं पेशव्यांच्या कानावर घातलं गेलं.

फोटो स्रोत, DR.UDAY KULKARNI
नाना फडणवीसांनी घाशीरामाला बोलावून यामागचं कारण विचारलं तेव्हा हे कोमटी वगैरे जातीचे चोर होते आणि ते अफू वगैरे खाऊन मेले असं त्यानं सांगितलं. त्यानंतर घाशीरामाने मृतदेह जाळण्यासाठी निरोप पाठवला मात्र मानाजी फाकड्यांनी याला विरोध केला.
पेशव्यांनी सांगितल्याशिवाय मृतदेह नेऊ देणार नाही अशी भूमिका त्यांनी घेतली. त्यामुळे नाना फडणवीसांनी घाशीरामाला पुन्हा काय झाले हे विचारले तेव्हा त्याने जुनंच उत्तर दिलं.
त्याला चौकीत आणल्यावर ब्राह्मणांनी संताप व्यक्त करायला सुरुवात केली.
शेवटी रात्र झाल्यावर नाना फडणवीसांनी न्यायाधीश अय्याशास्त्री यांना बोलावणं पाठवलं. त्यांनी या प्रकाराला देहांत प्रायश्चित्त असल्याचं सांगितलं.
शनिवारवाड्यात आधी घाशीरामाचे पागोटं फाडण्यात आलं त्याला मुसक्या बांधल्या आणि पायात बेड्या घालून तोफखान्यात पाठवलं.
संतप्त लोकांनी घाशीरामाला हत्तीवर उलटा बसवून पेठांमध्ये फिरवलं आणि रात्री रमण्यामध्ये ठेवलं. त्याच्या राखणीसाठी दोनशे ब्राह्मण बसले.
बुधवारी घाशीरामाला चावडीवर आणलं. त्याला उंटावर बसवून शहरभर फिरवलं त्यानंतर भवानी पेठेच्या पलीकडे नेऊन टाकलं त्यानंतर त्याच्यावर दगड मारुन त्याला मारण्यात आलं.
इंग्रजांच्या ताब्यात वाडा
नानांच्या मृत्यूनंतर पुण्यावर हक्क सांगायला शिंदे होळकरांमध्ये चढाओढ लागली. त्यातच विठोजी होळकरांना हत्तीच्या पायी देऊन दुसऱ्या बाजीरावांनी होळकरांचा राग ओढवून घेतला.
1802 पासून याचे परिणाम दिसून गेले. होळकरांनी थेट पुण्यावरच चाल केल्यावर पुण्यात कोलाहल माजला. बाजीरावानी पुणं आणि आपलं पद वाचवण्यासाठी इंग्रजांच्या मदतीची वाट धरली. त्यातूनच 1803 साली वसईचा तह झाला. त्याचवर्षी शिंदे आणि भोसले यांचे इंग्रजांशी युद्ध झालं आणि त्यात इंग्रजांचा विजय झाला. होळकरांना 1805 साली इंग्रजांशी तह करावा लागला.

फोटो स्रोत, Getty Images
या घडामोडींमुळे इंग्रजांना पुण्यात प्रवेश मिळाला. परंतु पुण्यातील घडामोडी काही थंडावल्या नाहीत. बडोद्याच्या गायकवाडांचे दिवाण गंगाधरशास्त्री यांची पंढरपुरात हत्या झाली.
इंग्रजांचा रेसिडेंट माऊंट स्टुअर्ट एलफिन्स्टनने याचा आरोप बाजीराव आणि त्यांचा सरदार त्रिंबकजी डेंगळे यांच्यावर ठेवला. त्रिंबकजी डेंगळेंना अटक करुन ठाण्याच्या तुरुंगात ठेवलं पण तिथून ते पळून गेले.
यानंतर त्रिंबकजी आपल्यावर हल्ला करेल अशी सतत भीती एलफिन्स्टन आणि इंग्रजांना वाटत होती. त्याला आपल्याकडे स्वाधीन करा अशी मागणी एलफिन्स्टन सतत करत राहिला, त्यासाठी पुण्याला वेढाही दिला.
पण इंग्रजांच्या मनातली हल्ल्याची भीती कमी झाली नाही. त्यात इंग्रजांवर हल्ला करायचा की नाही यावर धरसोड भूमिका दुसऱ्या बाजीरावाने घेतलेली दिसते.
अखेर 1817 च्या नोव्हेंबर महिन्यात इंग्रज आणि मराठे यांची येरवड्यात लढाई झाली आणि इंग्रज विजयी झाले. त्यानंतर इंग्रजांनी पुण्यावर ताबा मिळवला. बाळाजीपंत नातूंनी शनिवारवाड्यावर युनियन जॅक फडकवला.
16 नोव्हेंबर 1817 साली बाजीरावाने पुणं सोडलं. त्याच्या दुसऱ्याच दिवशी इंग्रजांनी वाड्याचा ताबा घेतला.
येरवड्यानंतरही इंग्रजांनी कोरेगाव, गोपाळ अष्टी, शिवनी इथं मराठ्यांचा पराभव केला. या लढायांमुळे पेशवाई आणि मराठी सत्तेचा सूर्य कायमचा अस्ताला गेला.
वसईच्या तहापासून सुरुवात झालेली सत्तेची संध्याकाळ अखेर 1818 साली रात्रीत रुपांतरित झाली.
हे वाचलंत का?
(बीबीसी न्यूज मराठीचे सर्व अपडेट्स मिळवण्यासाठी आम्हाला YouTube, Facebook, Instagram आणि Twitter वर नक्की फॉलो करा.
'गोष्ट दुनियेची', 'सोपी गोष्ट' आणि '3 गोष्टी' हे मराठीतले बातम्यांचे पहिले पॉडकास्ट्स तुम्ही Gaana, Spotify आणि Apple Podcasts इथे ऐकू शकता.)
























