The Crimson Field: Recreating a WW1 army hospital
Cristina Casali
Production Designer
As the production designer my job on The Crimson Field was to design the set: choosing the ideal location, deciding on the layout, designing all the different areas and selecting the style and decoration.
I researched historical photographs and paintings found from the Imperial War Museum archives, which was important early on as they communicated the atmosphere and look of the production.
I presented my design ideas to the producers in the form of mood boards, drawings, scale models and plans.
My whole team then worked closely together to achieve the ambition of the production.

Early base camp layout plans: the pharmacy set across the square from the quartermaster's store

Once the plans were finalised, I drew a 3D sketch of the whole site to bring it to life

My pharmacy design sketch detailing how the interior of the pharmacy would look

The construction of the pharmacy took three weeks, including painting the buildings

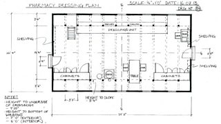
The dressing plan detailed the location of the large furniture in the pharmacy

Ready for filming: it took a week to fully stock the pharmacy with medical props

Marianne Oldham as Rosalie Berwick in the pharmacy
During my research, I noticed from photos of military hospital at Étaples that all the tents had been adapted to make them practical for hospital use.
Entrances and exits had been cut into the canvas wherever necessary, with a variety of wooden doors, storage areas and practical shelving added in.
So I joined three tents together to make a large L-shaped ward tent and imagined that the connecting corridors were storage areas and nurses stations.

I planned the nurses' station to be connected to Ward 1 through a series of corridors

My colour illustrations helped visualise the interior look and feel before construction

Oona Chaplin as Kitty Trevelyan on set in the ward

This scaled drawing showed what the quartermasters store would look like from all sides

An old photograph inspired this rock feature and all of the stone was appropriated nearby

The quartermasters store set dressed with props and ready for filming

Captain Miles Hesketh-Thorne (Alex Wyndham) visits the quartermaster (Jeremy Swift)
Cristina Casali is the production designer for The Crimson Field.
The Crimson Field continues on Sunday, 13 April at 9pm on BBC One and BBC One HD. For further programme times please see the episode guide.
More on The Crimson Field
BBC One: The Crimson Field: Watch a set tour narrated by Cristina Casali
BBC Media Centre: The Crimson Field
World War One At The BBC: More television and radio programmes
BBC Writersroom: The Crimson Field: Interview with creator & writer Sarah Phelps
Comments made by writers on the BBC TV blog are their own opinions and not necessarily those of the BBC.
