"Un campo de exterminio subsidiado por el Estado": así era la cárcel de Piedras Negras, la prisión clave para que Los Zetas se convirtieran en la organización criminal más brutal de México

- Autor, Leire Ventas
- Título del autor, BBC Mundo
"Cuando se cocinaba a las personas… éstas se iban poniendo chiquititas y se les iba picando con un fierro hasta que no quedaba nada".
Luego "se empinaba el tonel para vaciar los residuos en el suelo... que, la mera verdad, era muy poco".
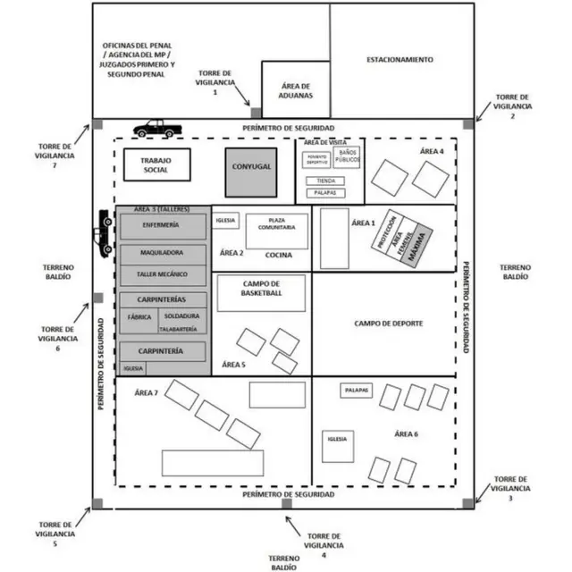
Este es parte del relato de alguien que, al menos durante 2011, estuvo preso en el Centro de Reinserción Social (Cereso) de Piedras Negras, un municipio de 140.000 habitantes del norte mexicano, a escasos 6,35 kilómetros en línea recta de la frontera con Estados Unidos.
La de este hombre cuyo nombre no se especifica es una de las 119 declaraciones recogidas por la Fiscalía General del Estado de Coahuila y que, sumadas al análisis de una amplia base documental, llevó a los investigadores Sergio Aguayo y Jacobo Dayán a concluir que dicha cárcel fue clave para que Los Zetas se convirtieran en lo que se convirtieron: la organización criminal más brutal de México.
Así lo afirman Aguayo, profesor del Colegio de México (Colmex) e investigador asociado del FXB Center for Health and Human Rights de la Universidad de Harvard (EE.UU.), y Dayán, profesor de la Universidad Iberoamericana y experto en derechos humanos, en el informe El yugo Zeta. Norte de Coahuila 2010-2011, publicado a finales de noviembre.

Según los académicos, el penal de Piedras Negras fue una "enclave criminal" controlado por Los Zetas, el grupo que nació como brazo armado del Cartel del Golfo pero que, tras escindirse de éste en 2010, se convirtió en un cartel con derecho propio.
Pero no solo eso.
"Fue una pieza clave en toda la organización empresarial y criminal del cartel", asegura Aguayo a BBC Mundo. "Un cuartel seguro en el que podían actuar sin preocupación con distintos propósitos".
Según los investigadores, el enclave fungió de:
- Taller mecánico donde alterar vehículos y fabricarles un cajón oculto en el que transportar droga a Estados Unidos
- Lugar ideal para mantener a los secuestrados hasta que los familiares pagaran el rescate
- Centro de torturas y donde ejecutar a los detenidos fuera de la prisión y hacer desaparecer sus cadáveres
- Fuente de ingresos, tanto por la venta de drogas interna como por la cuota que hacían pagar los internos
- Base social de la que reclutar a criminales para operativos externos
- Refugio para los jefes del cartel cuando eran perseguidos por las autoridades federales o la Marina mexicana.

"Pero sobre todo era un campo de exterminio subsidiado por el Estado, por ello de que funcionaba adentro de unas instalaciones estatales y con, cuanto menos, la omisión de ese gobierno", subraya Dayán, el otro autor del informe, a BBC Mundo.
Un lugar en el que, como contó aquel recluso, se "cocinaban" personas.
¿Pero cómo llegaron Los Zetas a tener tanto poder sobre la cárcel?
"Control territorial absoluto"
De acuerdo al profesor de la Universidad Iberoamericana, lo que allí ocurrió es una prueba más del "absoluto control territorial" de Los Zetas en Coahuila.
Ya en 2003 un memorando de la Administración para el Control de Drogas (DEA, por sus siglas en inglés) de EE.UU. aseguraba que los municipios coahuilenses Piedras Negras y Acuña estaban sometidos al "yugo" del grupo, entonces brazo armado del Cartel del Golfo.
Y ese dominio se fue extendiendo con el tiempo, hasta que alcanzó su cima en 2011.

Fuente de la imagen, Getty Images
El control sobre el penal de Piedras Negras, en el que convivían por aquel tiempo unos 655 reclusos y 77 encargados de custodiarlos y vigilar las instalaciones, la garantizaba el "jefe de plaza" nombrado por los máximos jefes de Los Zetas.
La información fue confirmada por la Fiscalía del Estado de Coahuila.
Este jefe de plaza —a quien no se nombra en el informe pero los medios mexicanos identifican como Ramón Burciaga Magallanes, el Maga, un expolicía acusado de secuestro— fue investido en diciembre de 2009 y gobernó la prisión hasta enero de 2012.
En el informe se le atribuyen conductas poco esperables del encargado de una prisión, como cantar karaoke y organizar equipos de fútbol y béisbol dentro de las instalaciones y patrocinar los uniformes de los reclusos.

Fuente de la imagen, Getty Images
Pero también otras más graves, como el seleccionar a "esposas, hermanas o familiares de internos" para tener con ellas relaciones sexuales, o disparar "por pura diversión" a los guardias de las torres de vigilancia.
Sin embargo, no actuaba solo. Contaba con unos 92 colaboradores con los que garantizaba el control zeta sobre la cárcel, señala el informe.
"Negocio redondo"
Según la investigación, bajo su control en las instalaciones se establecieron una serie de talleres.
Estaban el de hojalatería y pintura donde modificaban los coches, el de costura donde hacían los uniformes militares iguales a los oficiales que Los Zetas utilizaban en sus operativos, el de soldadura para fabricar estrellas y picos con los que los miembros de la organización pinchaban llantas, y el de carpintería, de donde salían figuras de madera de San Judas y la Santa Muerte.
La cárcel era además un depósito para la droga, así como un mercado más para vender estupefacientes, al estar lleno de internos con adicciones.
El Ministerio Público, durante la primera fase de la investigación sobre el penal, no cuestionó a los interrogados sobre la cantidad de sustancias ilícitas que ingresaban y salían del lugar. Pero en el informe se asegura que las vendían a los reclusos a crédito.

Fuente de la imagen, Getty Images
Aunque esa no era la única manera en la que la cárcel se volvió una máquina de hacer dinero, un "negocio redondo".
Los Zetas cobraban a los presos por todo: 1.000 pesos (unos US$50) quincenales "a los que se veía que tenían dinero", "50 pesos por noche" (US$2,6) pasada en el área conyugal, cuotas por el uso de luz y de agua, etcétera.
Y algunos de los interrogados contaron que, si se retrasaban en los pagos, la mayoría de las veces golpizas. Aunque uno de los presos contó haber presenciado el ahorcamiento de un compañero moroso.
La violencia era moneda corriente al interior del penal, donde se torturaba, asesinaba y desaparecía cadáveres.
También asesinaban gente que traían de exterior.
"Algunos llegaban vivos", coinciden Los Zetas, custodios, trabajadores y reclusos interrogados por la Fiscalía.
"Los tenían hincados y amarrados de sus manos hacia atrás", contó uno de los presos. En ocasiones "gritaban personas. Y creo que los mataban ahí".
Según las declaraciones recogidas en el informe, los asesinaban de dos maneras: "les daban un martillazo en la cabeza" o "un tiro en la nuca".
Sus cuerpos terminaban dentro de enormes tanques, rociados con diésel y reducidos a cenizas.
¿Y la autoridad formal?
¿Pero cómo ninguna autoridad no hizo nada al respecto? ¿A quién correspondía la responsabilidad sobre dicha cárcel?
"Formalmente dependía del gobierno de Estado", dice Aguayo, el investigador del Colmex.
Aunque en una carta enviada por Humberto Moreira Valdés, gobernador de Coahuila en aquellos años, a la Corte Penal Internacional (CPN) el 9 de octubre de 2017 en respuesta al informe "México: asesinatos, desapariciones y torturas en Coahuila de Zaragoza constituyen crímenes de lesa humanidad", le atribuía la autoridad formal sobre la prisión al gobierno federal.
"Con motivo de la situación delincuencial que estaba sufriendo el Centro de Readaptación Social de Piedras Negras, desde el año 2009 y como modelo de la estrategia de seguridad del por entonces presidente Felipe de Jesús Calderón Hinojosa, el centro estuvo militarizado", se lee en el texto.
A lo que sigue que "el centro penitenciario de Piedras Negras estaba dirigido por militares bajo las directrices del presidente de la República y no por el gobernador del Estado de Coahuila".
Aunque Dayán, el profesor de la Universidad de lberoamericana, más allá de esa afirmación "no existen evidencias de que era el gobierno federal la autoridad formal sobre esa cárcel".

Fuente de la imagen, Ronaldo Schemidt/AFP
Sea como sea, "por qué el gobierno del Estado no reaccionó no tiene respuesta", dice Dayán.
"Pero en realidad, no reaccionó ante ningún caso, ni siquiera ante la masacre de Allende", una de las más sangrientas de Los Zetas, cometida en marzo de 2011.
Y menciona la "posible colusión de algunos actores estatales y federales con el crimen organizado, o cuanto menos la omisión de ambos gobiernos".
Ni el gobierno de Coahuila ni el de la república han reaccionado públicamente ante el contenido del informe El yugo Zeta. Aunque un borrador de la versión final le fue facilitado al gobierno estatal, cuentan los investigadores, al igual que otros actores que les facilitaron información, como la Comisión Nacional de los Derechos Humanos o la Comisión Ejecutiva de Atención de Víctimas.
BBC Mundo se puso en contacto con el gobierno del Estado de Coahuila para preguntarle sobre la cuestión, pero hasta el momento sigue esperando su versión.
Fragmentados pero violentos
Hoy la cárcel está de nuevo bajo el control del gobierno del Estado de Coahuila.
"Lo recuperó en 2012, después de que se fugaran todos Los Zetas", cuenta Dayán.
El 17 de septiembre de aquel año los medios mexicanos informaron sobre la fuga de 129 presos del Cereso de Piedras Negras, casi la quinta parte de los reclusos, "en 15 minutos" por un túnel de siete metros de largo y 1,2 de ancho.

Fuente de la imagen, Getty Images
Según las declaraciones de custodios incluidas en el expediente de la Fiscalía de Coahuila y de los juicios contra Zetas llevados a cabo en EE.UU., fue el jefe de la cárcel el que los permitió salir porque "necesitaban gente para trabajar".
Los investigadores afirman en su informe que las evasiones de la prisión eran recursos utilizados por Los Zetas para reforzar sus filas para operativos.
"En los estados controlados por este grupo criminal hemos identificado fugas de cerca de 400 reos, al menos, en Coahuila, Nuevo León, Tamaulipas, Veracruz y Tamaulipas".
Sea como sea, ambos investigadores coinciden en que la situación de seguridad de Coahuila ha mejorado considerablemente.
Los Zetas no son la gran organización compacta que era entonces. Se ha fragmentado.
"Hoy existen células de Los Zetas", explica Dayán, "aunque siguen siendo el grupo criminal más violento de México". Y coincide con el análisis la página web especializada en investigación sobre crimen organizado InsightCrime.
Los investigadores señalan en que siguen teniendo una presencia importante sobre todo en Tamaulipas, aunque también en otros estados.
Por eso, Dayán no descarta que existan otras cárceles como la de Piedras Negras.
"Esta es la única vez en la que se ha tenido acceso a informes oficiales y se ha reconstruido la vida adentro de una cárcel controlada por Los Zetas con tanto detalle, haciéndose una radiografía tan exhaustiva", dice sobre el informe que realizó junto a Aguayo.
"Pero la lógica diría que puede ser la realidad de varias prisiones del país".

Ahora puedes recibir notificaciones de BBC Mundo. Descarga la nueva versión de nuestra app y actívalas para no perderte nuestro mejor contenido.









